House Kits — Floor Plans & Pricing

47 Floor Plans. One Call.

American-made wood-framed house kits delivered to your site anywhere in the country. Each kit ships with stamped engineering, all framing lumber, sheathing, roofing, doors, windows, siding, and the hardware to put it together. Get in the dry in under 30 days.

47Floor Plans
721–2,520Sq Ft Range
$30,560+Starting Kit Price
40-YearStructural Warranty + 1-Yr Labor

* Prices shown are for the kit only and do not include delivery, site prep, foundation, or labor/erection. Contact our team for a complete project estimate including all costs.

What's in the Kit

Base Spec & Upgrade Options

Base Price Includes

Standard Build Package

  • 2x4 wall framing — kiln-dried SPF studs, 16" on center
  • 26-gauge metal roofing — exposed-fastener panels, multiple color options
  • 26-gauge metal siding — horizontal panels, matched to roof color
  • Engineered roof trusses, 9-ft sidewalls, vinyl windows
  • Pre-hung exterior doors, ridge vents, drip edge, trim & flashing
  • 40-year structural warranty + 1-year labor warranty
Available Upgrades

Build Better for a Little More

  • 2x6 wall framing — deeper cavity for thicker insulation, better long-term R-value
  • Insulation packages — batt, blown-in, or closed-cell spray foam (walls + ceiling)
  • Premium vertical board & batten metal siding over 7/16" OSB sheathing — board-and-batten farmhouse look with a fully sheathed wall behind it
  • Upgraded windows, additional doors, taller walls, steeper roof pitches
  • Porch packages, dormers, garage bays, custom plan tweaks

Every quote is itemized line-by-line so you can see exactly what each upgrade adds. Want a price with 2x6 + spray foam + board & batten on any plan below? Call 765-748-6067 or request a custom quote.

Showing all 47 plans
The Retreat (Plan #18L) — 2 bed/1 bath, 721 sq ft wood-framed house kit, exterior view The Retreat (Plan #18L) floor plan diagram Floor Plan

The Retreat Plan #18L

2 Bed1 BathNo Garage
721 sq ft · 26×28×8 · 4/12 pitch

Compact open-plan starter. Front porch as shown, 3 vinyl windows.

The Cabin (Plan #48L) — 2 bed/1 bath, 812 sq ft wood-framed house kit, exterior view The Cabin (Plan #48L) floor plan diagram Floor Plan

The Cabin Plan #48L

2 Bed1 BathNo Garage
812 sq ft · 29×28×9 · 4/12 pitch

9-ft walls give this 2-bed plan an airy, open feel. Front porch as shown, 3 windows.

The Bunkhouse (Plan #17B) — 2 bed/1 bath, 936 sq ft wood-framed house kit, exterior view The Bunkhouse (Plan #17B) floor plan diagram Floor Plan

The Bunkhouse Plan #17B

2 Bed1 BathNo Garage
936 sq ft · 26×36×8 · 4/12 pitch

Open cabin-style layout with 166 ft of interior framing. Porch as shown, generous windows.

The Weekender (Plan #38) — 2 bed/2 bath, 1012 sq ft wood-framed house kit, exterior view The Weekender (Plan #38) floor plan diagram Floor Plan

The Weekender Plan #38

2 Bed2 BathNo Garage
1,012 sq ft · 28×36×8 · 4/12 pitch

Two full baths in a compact 28×36 footprint. Deep covered porch, 4 vinyl windows.

The Barndo (Plan #35) — 2 bed/2 bath, 1500 sq ft wood-framed house kit, exterior view The Barndo (Plan #35) floor plan diagram Floor Plan

The Barndo Plan #35

2 Bed2 BathWith Garage
1,500 sq ft · 36×50×8 · 6/12 pitch

Barndominium-style with integrated 18×7 garage bay. 6/12 pitch, porch as shown.

The Compact (Plan #16A) — 3 bed/1 bath, 936 sq ft wood-framed house kit, exterior view The Compact (Plan #16A) floor plan diagram Floor Plan

The Compact Plan #16A

3 Bed1 BathNo Garage
936 sq ft · 26×36×8 · 4/12 pitch

Three bedrooms packed efficiently into a 26×36 footprint. Front porch, 4 vinyl windows.

The Homestead (Plan #19) — 3 bed/1 bath, 964 sq ft wood-framed house kit, exterior view The Homestead (Plan #19) floor plan diagram Floor Plan

The Homestead Plan #19

3 Bed1 BathNo Garage
964 sq ft · 28×36×8 · 4/12 pitch

Efficient 3-bed starter. 28×36 footprint, studs 16″ OC, front porch as shown.

The Frontier (Plan #43) — 3 bed/2 bath, 952 sq ft wood-framed house kit, exterior view The Frontier (Plan #43) floor plan diagram Floor Plan

The Frontier Plan #43

3 Bed2 BathNo Garage
952 sq ft · 28×34×8 · 4/12 pitch

3 bed and 2 full baths under 1,000 sq ft. Porch as shown, 4 vinyl windows.

The Sunrise (Plan #44) — 3 bed/2 bath, 1088 sq ft wood-framed house kit, exterior view The Sunrise (Plan #44) floor plan diagram Floor Plan

The Sunrise Plan #44

3 Bed2 BathNo Garage
1,088 sq ft · 32×34×8 · 4/12 pitch

Wide front porch and open living-dining area. 5 vinyl windows, 32×34 footprint.

The Meadow (Plan #49) — 3 bed/2 bath, 1088 sq ft wood-framed house kit, exterior view The Meadow (Plan #49) floor plan diagram Floor Plan

The Meadow Plan #49

3 Bed2 BathNo Garage
1,088 sq ft · 32×34×8 · 4/12 pitch

Alternate 3/2 plan in the same class — different interior flow. 5 vinyl windows.

The Settler (Plan #3) — 3 bed/2 bath, 1198 sq ft wood-framed house kit, exterior view The Settler (Plan #3) floor plan diagram Floor Plan

The Settler Plan #3

3 Bed2 BathNo Garage
1,198 sq ft · 36×36×8 · 4/12 pitch

Open living area with split-bedroom layout. 6 vinyl windows, wide front porch.

The Classic (Plan #1) — 3 bed/2 bath, 1280 sq ft wood-framed house kit, exterior view with white board-and-batten siding, black metal roof, covered front porch with stone foundation The Classic (Plan #1) floor plan diagram — 3 bedrooms, 2 baths, 32×40 footprint with master bedroom, kitchen/dining, vaulted living room, laundry, and 20' covered front porch Floor Plan

The Classic Plan #1

3 Bed2 BathNo Garage
1,280 sq ft · 32×40×8 · 4/12 pitch

Time-tested 3-bed layout. Wide front porch, 6 vinyl windows, 32×40 footprint.

The Ridgeline (Plan #2) — 3 bed/2 bath, 1280 sq ft wood-framed house kit, exterior view The Ridgeline (Plan #2) floor plan diagram Floor Plan

The Ridgeline Plan #2

3 Bed2 BathNo Garage
1,280 sq ft · 32×40×8 · 4/12 pitch

Same square footage as The Classic, distinct interior arrangement. 6 vinyl windows.

The Plainsman (Plan #4) — 3 bed/2 bath, 1280 sq ft wood-framed house kit, exterior view The Plainsman (Plan #4) floor plan diagram Floor Plan

The Plainsman Plan #4

3 Bed2 BathNo Garage
1,280 sq ft · 32×40×8 · 4/12 pitch

Open-concept kitchen and living with split bedrooms. 6 vinyl windows, front porch.

The Prairie (Plan #45) — 3 bed/2 bath, 1280 sq ft wood-framed house kit, exterior view The Prairie (Plan #45) floor plan diagram Floor Plan

The Prairie Plan #45

3 Bed2 BathNo Garage
1,280 sq ft · 32×40×8 · 4/12 pitch

Functional plan with large master suite and open great room. 7 vinyl windows.

The Ironwood (Plan #46) — 3 bed/2 bath, 1280 sq ft wood-framed house kit, exterior view The Ironwood (Plan #46) floor plan diagram Floor Plan

The Ironwood Plan #46

3 Bed2 BathWith Garage
1,280 sq ft · 32×40×8 · 4/12 pitch

Same 1,280 sq ft living area plus attached 18×7 garage bay. 6 windows, porch as shown.

The Ranchero (Plan #7) — 3 bed/2 bath, 1434 sq ft wood-framed house kit, exterior view The Ranchero (Plan #7) floor plan diagram Floor Plan

The Ranchero Plan #7

3 Bed2 BathNo Garage
1,434 sq ft · 36×40×8 · 4/12 pitch

Spacious open living and dining area on a 36×40 footprint. 7 vinyl windows.

The Sideyard (Plan #20) — 3 bed/2 bath, 1420 sq ft wood-framed house kit, exterior view The Sideyard (Plan #20) floor plan diagram Floor Plan

The Sideyard Plan #20

3 Bed2 BathWith Garage
1,420 sq ft · 36×44×8 · 4/12 pitch

Side-entry garage with 18×7 opening. Covered front porch, 6 vinyl windows.

The Wrangler (Plan #47) — 3 bed/2 bath, 1440 sq ft wood-framed house kit, exterior view The Wrangler (Plan #47) floor plan diagram Floor Plan

The Wrangler Plan #47

3 Bed2 BathWith Garage
1,440 sq ft · 36×40×8 · 4/12 pitch

House and garage side-by-side. 18×7 garage door opening, 6 vinyl windows.

The Shop House (Plan #21) — 3 bed/2 bath, 1415 sq ft wood-framed house kit, exterior view The Shop House (Plan #21) floor plan diagram Floor Plan

The Shop House Plan #21

3 Bed2 BathWith Garage
1,415 sq ft · 36×48×8 · 4/12 pitch

Full workshop attached to living quarters — ideal for tradesmen or serious hobbyists.

The Longview (Plan #5) — 3 bed/2 bath, 1536 sq ft wood-framed house kit, exterior view The Longview (Plan #5) floor plan diagram Floor Plan

The Longview Plan #5

3 Bed2 BathNo Garage
1,536 sq ft · 36×46×8 · 4/12 pitch

Long, open 36×46 footprint with wide covered porch and 7 vinyl windows.

The Hillcrest (Plan #6) — 3 bed/2 bath, 1536 sq ft wood-framed house kit, exterior view The Hillcrest (Plan #6) floor plan diagram Floor Plan

The Hillcrest Plan #6

3 Bed2 BathNo Garage
1,536 sq ft · 36×46×8 · 4/12 pitch

Central great room plan. Alternate 1,536 sq ft layout. 7 vinyl windows.

The Countryside (Plan #8) — 3 bed/2 bath, 1536 sq ft wood-framed house kit, exterior view The Countryside (Plan #8) floor plan diagram Floor Plan

The Countryside Plan #8

3 Bed2 BathNo Garage
1,536 sq ft · 36×46×8 · 4/12 pitch

Generous master suite with private bath. 8 vinyl windows, deep covered porch.

The Barnwood (Plan #41) — 3 bed/2 bath, 1536 sq ft wood-framed house kit, exterior view The Barnwood (Plan #41) floor plan diagram Floor Plan

The Barnwood Plan #41

3 Bed2 BathNo Garage
1,536 sq ft · 36×46×8 · 4/12 pitch

Classic farmhouse flow. Split bedrooms, large living-dining, 8 vinyl windows.

The Shopside (Plan #22) — 3 bed/2 bath, 1536 sq ft wood-framed house kit, exterior view The Shopside (Plan #22) floor plan diagram Floor Plan

The Shopside Plan #22

3 Bed2 BathWith Garage
1,536 sq ft · 36×54×8 · 4/12 pitch

Attached 2-car garage with utility entrance. 7 vinyl windows, large covered porch.

The Forge (Plan #23) — 3 bed/2 bath, 1536 sq ft wood-framed house kit, exterior view The Forge (Plan #23) floor plan diagram Floor Plan

The Forge Plan #23

3 Bed2 BathWith Garage
1,536 sq ft · 36×54×8 · 4/12 pitch

Second garage-style layout in this size class — extra parking and storage access.

The Farmstead (Plan #31) — 3 bed/2 bath, 1600 sq ft wood-framed house kit, exterior view The Farmstead (Plan #31) floor plan diagram Floor Plan

The Farmstead Plan #31

3 Bed2 BathNo Garage
1,600 sq ft · 40×40×8 · 4/12 pitch

Square 40×40 footprint with generous living and dining areas. 8 vinyl windows.

The Crossroads (Plan #37) — 3 bed/2 bath, 1605 sq ft wood-framed house kit, exterior view The Crossroads (Plan #37) floor plan diagram Floor Plan

The Crossroads Plan #37

3 Bed2 BathNo Garage
1,605 sq ft · 40×40×8 · 4/12 pitch

Wide porch and open great room on a 40×40 frame. 8 vinyl windows.

The Broadfield (Plan #11) — 3 bed/2 bath, 1693 sq ft wood-framed house kit, exterior view The Broadfield (Plan #11) floor plan diagram Floor Plan

The Broadfield Plan #11

3 Bed2 BathNo Garage
1,693 sq ft · 36×48×8 · 4/12 pitch

Extra-long 36×48 footprint. Roomy master suite and expansive living area. 8 windows.

The Steepridge (Plan #13) — 3 bed/2 bath, 1693 sq ft wood-framed house kit, exterior view The Steepridge (Plan #13) floor plan diagram Floor Plan

The Steepridge Plan #13

3 Bed2 BathNo Garage
1,693 sq ft · 36×48×9 · 6/12 pitch

6/12 pitch on a 36×48 frame. High roof line, 9-ft walls, 8 vinyl windows.

The Patriot (Plan #9) — 3 bed/2 bath, 1800 sq ft wood-framed house kit, exterior view The Patriot (Plan #9) floor plan diagram Floor Plan

The Patriot Plan #9

3 Bed2 BathNo Garage
1,800 sq ft · 40×46×8 · 4/12 pitch

American classic. 40×46 footprint, 9 vinyl windows, wide covered front porch.

The Heritage (Plan #10) — 3 bed/2 bath, 1800 sq ft wood-framed house kit, exterior view The Heritage (Plan #10) floor plan diagram Floor Plan

The Heritage Plan #10

3 Bed2 BathNo Garage
1,800 sq ft · 40×46×8 · 4/12 pitch

Open-concept heritage plan with large kitchen and dining areas. 9 vinyl windows.

The Summit (Plan #12) — 3 bed/2 bath, 1800 sq ft wood-framed house kit, exterior view The Summit (Plan #12) floor plan diagram Floor Plan

The Summit Plan #12

3 Bed2 BathNo Garage
1,800 sq ft · 40×46×9 · 6/12 pitch

6/12 high-pitch roof, 9-ft walls. Commanding look on any piece of land. 9 windows.

The Creekside (Plan #27) — 3 bed/2 bath, 1800 sq ft wood-framed house kit, exterior view The Creekside (Plan #27) floor plan diagram Floor Plan

The Creekside Plan #27

3 Bed2 BathNo Garage
1,800 sq ft · 40×46×8 · 4/12 pitch

Deep front porch and generous back porch. 9 vinyl windows, 40×46 footprint.

The Sagebrush (Plan #36) — 3 bed/2 bath, 1800 sq ft wood-framed house kit, exterior view The Sagebrush (Plan #36) floor plan diagram Floor Plan

The Sagebrush Plan #36

3 Bed2 BathWith Garage
1,800 sq ft · 40×54×8 · 4/12 pitch

1,800 sq ft of living plus attached 18×7 garage bay. 9 windows, deep porches.

The Keystone (Plan #40A) — 3 bed/2 bath, 1800 sq ft wood-framed house kit, exterior view The Keystone (Plan #40A) floor plan diagram Floor Plan

The Keystone Plan #40A

3 Bed2 BathWith Garage
1,800 sq ft · 40×54×8 · 4/12 pitch

Corner-entry garage layout with 1,800 sq ft living area. 9 windows, porch as shown.

The Lonestar (Plan #34) — 3 bed/2 bath, 1860 sq ft wood-framed house kit, exterior view The Lonestar (Plan #34) floor plan diagram Floor Plan

The Lonestar Plan #34

3 Bed2 BathNo Garage
1,860 sq ft · 42×44×8 · 4/12 pitch

Wide 42×44 footprint with big open living areas and covered porches. 9 vinyl windows.

The Homestead Plus (Plan #15B) — 4 bed/2 bath, 1820 sq ft wood-framed house kit, exterior view The Homestead Plus (Plan #15B) floor plan diagram — 4 bedrooms, 2 baths, 52×36 footprint with master bedroom, kitchen/dining, vaulted living room, laundry, office/bedroom, and 40' covered front porch (no garage) Floor Plan

The Homestead Plus Plan #15B

4 Bed2 BathNo Garage
1,820 sq ft · 36×52×9 · 6/12 pitch

Four-bedroom plan without garage. 9-ft walls, 9 vinyl windows, large master suite.

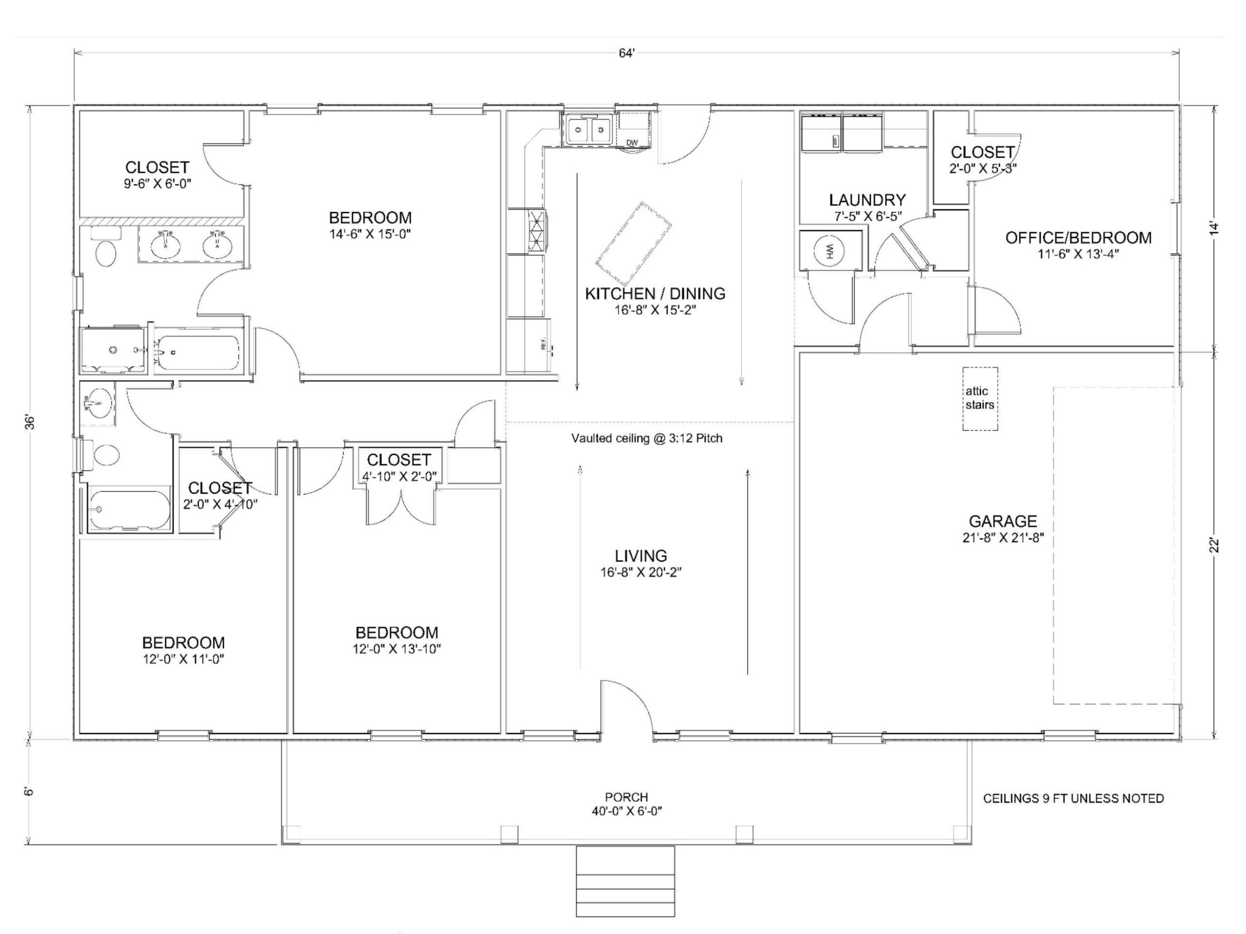
The Cornerstone (Plan #15A) — 4 bed/2 bath, 1820 sq ft wood-framed house kit, exterior view with light tan board-and-batten siding, gray standing-seam metal roof, covered front porch with white columns, stone wainscoting, and attached 2-car garage The Cornerstone (Plan #15A) floor plan diagram — 4 bedrooms, 2 baths, 64×36 footprint with 21'8"×21'8" attached garage, kitchen/dining, vaulted living room, laundry, office/bedroom, and 40' covered front porch Floor Plan

The Cornerstone Plan #15A

4 Bed2 BathWith Garage
1,820 sq ft · 36×64×9 · 6/12 pitch

Same great 4-bed plan with attached 18×7 garage bay. 9 vinyl windows, 9-ft walls.

The Iron Horse (Plan #14) — 4 bed/2 bath, 1820 sq ft wood-framed house kit, exterior view The Iron Horse (Plan #14) floor plan diagram Floor Plan

The Iron Horse Plan #14

4 Bed2 BathWith Garage
1,820 sq ft · 36×64×9 · 6/12 pitch

Large 18×7 garage, 9-ft walls, 282 ft interior framing. 9 vinyl windows.

The Landowner (Plan #28) — 4 bed/2 bath, 2304 sq ft wood-framed house kit, exterior view The Landowner (Plan #28) floor plan diagram Floor Plan

The Landowner Plan #28

4 Bed2 BathNo Garage
2,304 sq ft · 36×64×9 · 6/12 pitch

Big family plan on a 36×64 footprint. Two porches, 13 vinyl windows, 9-ft walls.

The Cattleman (Plan #26) — 4 bed/3 bath, 2181 sq ft wood-framed house kit, exterior view The Cattleman (Plan #26) floor plan diagram Floor Plan

The Cattleman Plan #26

4 Bed3 BathNo Garage
2,181 sq ft · 42×58×8 · 6/12 pitch

Three full baths and open living area. 9 vinyl windows, porches, 42×58 footprint.

The Big Five (Plan #32) — 5 bed/2 bath, 2176 sq ft wood-framed house kit, exterior view The Big Five (Plan #32) floor plan diagram Floor Plan

The Big Five Plan #32

5 Bed2 BathNo Garage
2,176 sq ft · 40×56×8 · 4/12 pitch

5-bedroom family home. Two covered porches, 9 vinyl windows, 40×56 footprint.

The Compound (Plan #33) — 6 bed/2 bath, 2258 sq ft wood-framed house kit, exterior view The Compound (Plan #33) floor plan diagram Floor Plan

The Compound Plan #33

6 Bed2 BathNo Garage
2,258 sq ft · 40×58×9 · 6/12 pitch

Multi-generational or large-family plan. 9-ft walls, 10 vinyl windows, 40×58 frame.

The Ranchland (Plan #29) — 3 bed/3 bath, 2304 sq ft wood-framed house kit, exterior view The Ranchland (Plan #29) floor plan diagram Floor Plan

The Ranchland Plan #29

3 Bed3 BathNo Garage
2,304 sq ft · 36×64×9 · 6/12 pitch

Master suite plus two additional en-suite rooms. 9-ft walls, 13 windows, two porches.

The Premier (Plan #30) — 3 bed/3 bath, 2198 sq ft wood-framed house kit, exterior view The Premier (Plan #30) floor plan diagram Floor Plan

The Premier Plan #30

3 Bed3 BathWith Garage
2,198 sq ft · 40×60×9 · 6/12 pitch

Three full baths, 9-ft walls, attached garage. Our top all-in-one plan. 10 vinyl windows.

The Estate (Plan #39) — 4 bed/3 bath, 2520 sq ft wood-framed house kit, exterior view The Estate (Plan #39) floor plan diagram Floor Plan

The Estate Plan #39

4 Bed3 BathNo Garage
2,520 sq ft · 42×60×9 · 6/12 pitch

Our largest plan. 42×60 footprint, 9-ft walls, 3 full baths. 10 windows, two porches.

No floor plans match your filters.

House Kit Buying Guides

Real answers from our team — no fluff, no upsell.